Kabinas
Luxury in the 21st century comes in the form of having the space and comforts to enjoy your surroundings. Design for the Kabina was dictated by ensuring everything you need is at your fingertips while adventuring with attention paid to details that aren’t typically in glamping pods.
Your Destination, Your Specification
Sympathetic integration into multiple terrains, ecologies and environments is important to us. The rolling form and green roof capabilities of Kabina draws inspiration from open spaces and rolling vistas, intended to blend with landscapes.
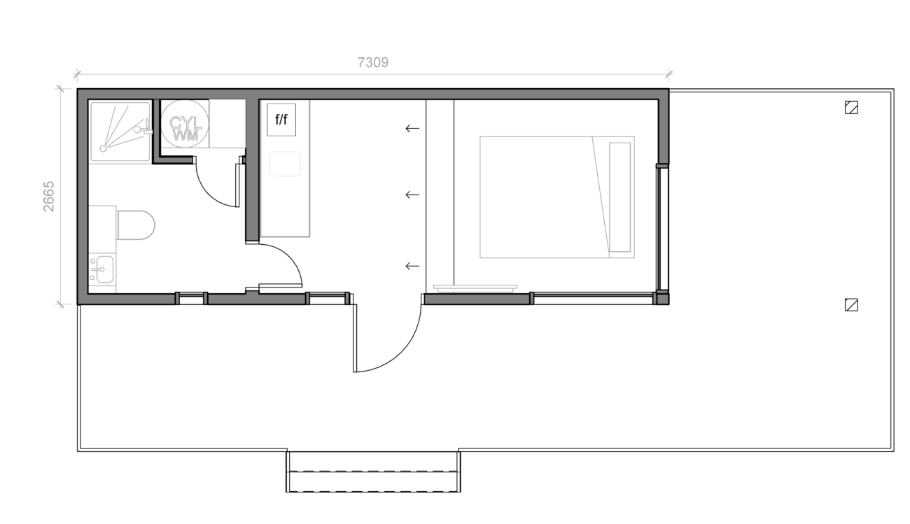
Kabina Mini
Dimensions 7.3m x 2.7m (approx)
Standard Specifications
Steel frame structure with warm roof PIR insulation; EPDM roof membrane; High performance rigid insulation; Thermowood shadowboard exterior cladding; Double glazed uPVC doors and windows; Underfloor heating throughout; Painted tongue and groove interior wall cladding; Hard-wearing woodgrain LVT flooring; Kitchenette with counter unit, sink, splashback and wall shelf; Fitted appliance, hob, fridge, microwave oven; LED strip lighting to all rooms and above kitchenette; LED exterior lights and internal wall lights; Showerroom; Heated towel rail; Electric or LPG water cylinder






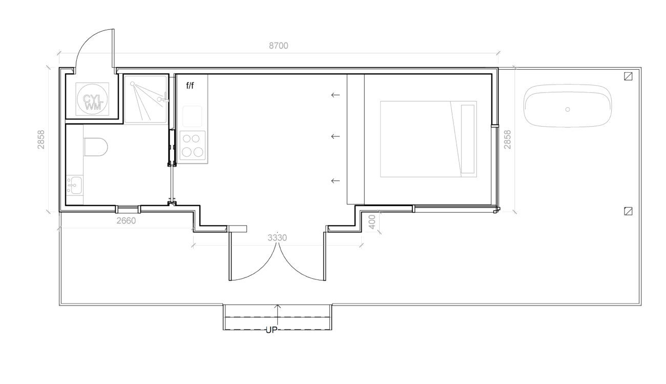
Kabina Classic
Dimensions 8.7m x 2.9 (approx)
Standard Specifications
Steel frame structure with warm roof PIR insulation; EPDM roof membrane; High performance rigid insulation; Thermowood shadowboard exterior cladding; Double glazed uPVC doors and windows; Underfloor heating throughout; Painted tongue and groove interior wall cladding; Hard-wearing woodgrain LVT flooring; Kitchenette with counter unit, sink, splashback and wall shelf; Fitted appliance, hob, fridge, microwave oven; LED strip lighting to all rooms and above kitchenette; LED exterior lights and internal wall lights; Showerroom; Heated towel rail; Electric or LPG water cylinder
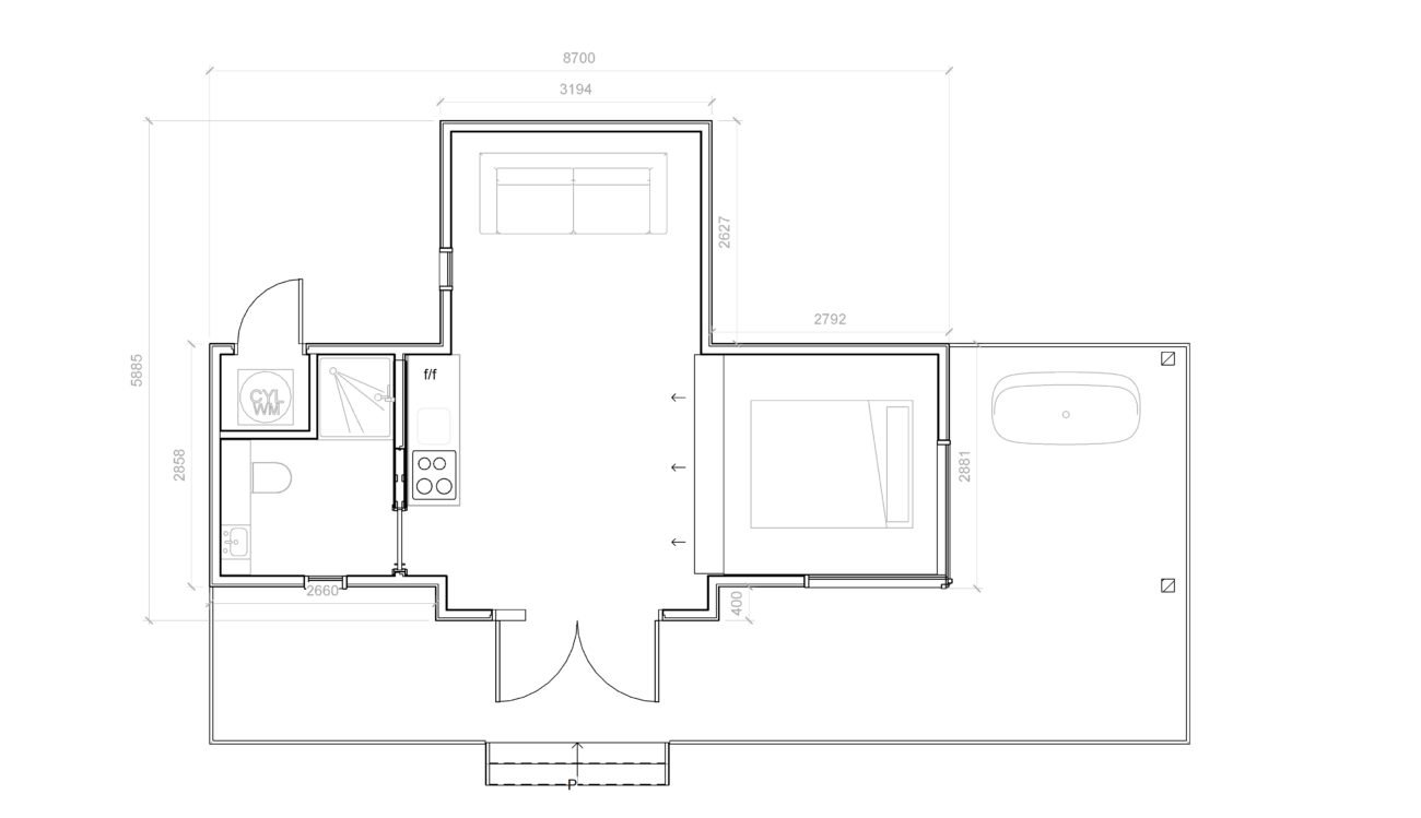
Kabina Grande
Dimensions 8.7m x 5.9 (approx)
Standard Specifications
Steel frame structure with warm roof PIR insulation; EPDM roof membrane; High performance rigid insulation; Thermowood shadowboard exterior cladding; Double glazed uPVC doors and windows; Underfloor heating throughout; Painted tongue and groove interior wall cladding; Hard-wearing woodgrain LVT flooring; Kitchenette with counter unit, sink, splashback and wall shelf; Fitted appliance, hob, fridge, microwave oven; LED strip lighting to all rooms and above kitchenette; LED exterior lights and internal wall lights; Showerroom; Heated towel rail; Electric or LPG water cylinder



CHOOSE YOUR CLADDING
CHOOSE YOUR INTERIOR BASE
KABINA STARTER
Our base model specification offers a high quality finish and tranquil atmosphere, with a light and airy ambiance, and natural colour palette.
WOODGRAIN HARD-WEARING LUXURY VINYL TILES
PAINTED TONGUE & GROOVE WALL PANELS
WALL PANELS TO SHOWER & KITCHEN SPLASHBACK
KABINA BOUTIQUE
What does boutique mean to you? To us, it means creating a bespoke environment and giving each Kabina a unique identity.
RECLAIMED BARN TIMBER WALL CLADDING
TILED FLOORING & SHOWERWALL
HAMMERED COPPER KITCHEN AND BATHROOM SPLASHBACK